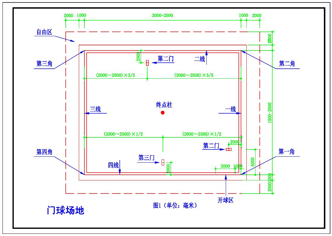
标准门球场尺寸要求:

1、比赛线长20-25米,宽15-20米.
2、缓冲区为比赛区每条边外延1m(发球区在这1m范围内)
3、辅助区为缓冲区外每条边外延1m以上(用于放置计分牌及场地座椅)。
4、比赛线及限制线的宽度为1-5cm。
5、不含辅助区的场地最低尺寸为22m*17m=374平米。
6、含辅助区的场地最小标准尺寸为24m*19m=456平米。
7、场地边缘设高30cm宽20~50cm的挡球墙,内墙立面须粘贴人造草坪或其他弹性材料,以防治球撞击到墙上对球产生的损坏。
8、球门与终点柱。场地内设三个球门,一个终点柱。球门是由直径1cm的圆形金属物做成,高20cm(从地面之上算起)宽22cm。终点柱是由直径2cm的圆形平顶金属物制成,高20cm(从地面之上算起),牢固钉入底下。

更多问题,欢迎咨询大上实业网站上的负责人