里约奥运会上中国健儿们接连夺冠,体迷们是不是欣喜万分,激动非常呢?体育赛道大家是否具体关注过呢?田径赛道,篮球场,排球场各条线分别代表什么含义呢?体迷们的福利来啦~~
备受瞩目的华诚塑胶跑道施工终于画上了圆满的句号,小编抑制不住雀跃的心情~上图一张
体迷们的福利来了。咦,这么多线都代表什么含义?小编一一为您解读。
第一篇:田径赛道
整个塑胶跑道呈椭圆形。图中白色线为田径赛场分道线,这些分道线将跑道分为六个,有直跑道和曲跑道。(注:曲跑道是指椭圆弯曲处的跑道)
4*100接力赛的起点
这个黄线是4*100接力赛的第二个接力区
跑道上这条黄白相间的线是千米长跑的起点线。
第二篇:篮球场

爱好篮球的球迷们快来看看这些线你都认识吗?
外侧矩形场地.球接触到场地以外的地面为出界.运球者踩线为出界.
出界交换球权.
两边大半圆为3分线.3分线以外3分球.投者踩线进球为两分.
内侧弧线为3秒区.内线球员的天下,进攻方不能长时间呆在3秒区.
3秒区内横线为罚球线.罚球....
补充一下,中线将球场分为前后两部分,分别是攻方和守方的前后场
中线、两条罚球线上各有一个圆,被分为两半,是跳球区
篮下各有一个半圆,是合理冲撞区,攻方在不违反体育道德和不伤害防守球员时,任何身体接触都不算犯规
边线外约与弧顶平行处各有一条平行线,技术犯规后的发球处在这里。
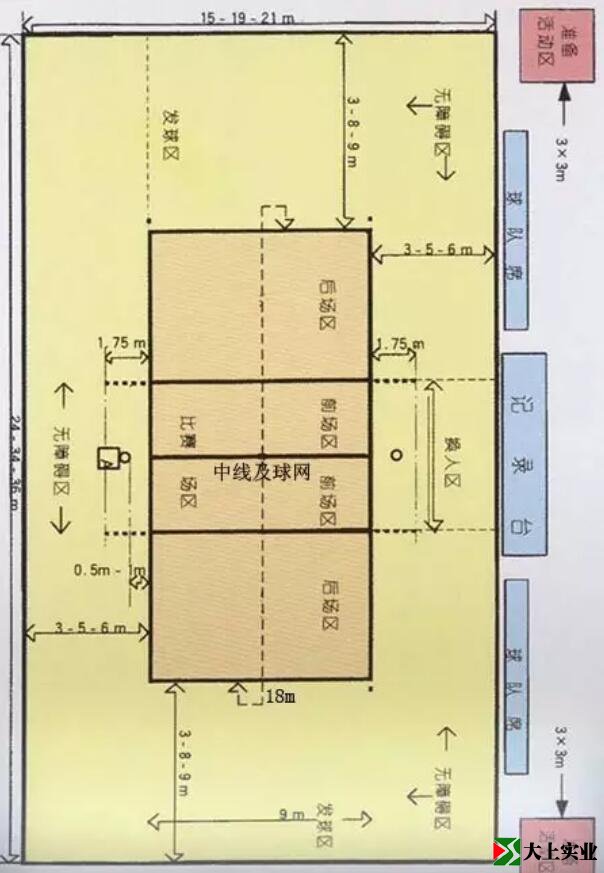
第三篇:排球场
篮球场右面那些中规中矩的矩形框是什么?答:是排球场。排球比赛场区为长18米,宽9米的长方形。接下来小编上一张非常形象的直观的平面图为大家解读。
第四篇:跳远区
为了让小伙伴们了解的更清楚,小编依然要借助平面图为您解读。
有这么规范的体育场地,华诚学校体育成绩遥遥领先是毫无疑问的。
也愿在这里的每个孩子都能茁壮幸福的成长!